AI Takeoff

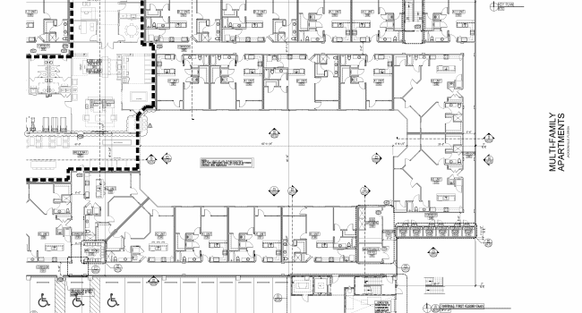
Measure Square has developed a new approach to automate floor plan takeoff by using AI Deep Learning and Computer Vision algorithms to detect room areas, doors and windows.

  • Automate the takeoff by detecting the room boundary, door and window locations with pre-trained floor plan data sets.
  • Has also been integrated into MeasureSquare Commercial takeoff estimating software.
Get Started
AI Takeoff

Pre-construction Takeoff and Estimating

  • Auto takeoff rooms, doors/windows, other projects for residential and commercial construction project estimating
  • Automatic object detection and counts

Renovation Project Layout and Budget Planning

  • Digitize renovation project areas, SF/LF quantities for budget/bid planning

Property Floor Plan Area Assessment

  • Batch process property living areas for tax assessment
  • Automate recreation of 3D space based on 2D plans

Jobsite production tracking

  • Digitize jobsite plan into room areas where tasks can be assigned and tracked and reported individually

Smart Building Applications

  • Digitize building model from existing plans and map IoTs devices on digitized 3D spaces

Government Zoning Office Plan Scanning and Search

  • Automatic scan and store plans, search for specific areas or objects for city zoning office automation